1738 Sunbeam Rd, Leitchfield, KY, 42754
1738 Sunbeam Rd, Leitchfield, KY, 42754Basics
- Date added: Added 2 months ago
- Category: RESIDENTIAL
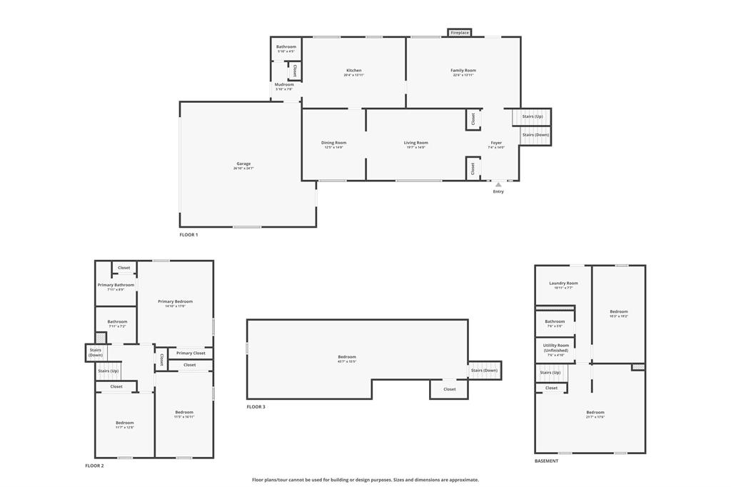
- Bedrooms: 5
- MLS ID: 94184
- Status: Active
- Bathrooms: 3
- Half baths: 1
Description
-
Description:
This home offers all the room you will need for family living, entertaining, and relaxing. You will find multiple gathering spaces with a space designed for versatility. The updates give you peace of mind, with a newer roof, furnaces, central air units, new septic system, and electric garage doors. Outdoors, you will enjoy open space, and a spacious chicken coop for anyone interested in hobby farming or fresh eggs right from your backyard. Two 2-car garages (one attached, one detached) provide ample storage for vehicles, equipment, or projects.
Show all description
Details
- Total Finished Sq ft: 3896 sq ft
- Above Grade Finished SqFt (GLA): 0 sq ft
- Below Grade/Basement Finished SF: 801 sq ft
- Lot Size: 108900 acres
- Type: Single Family Residence
- County: Grayson
- Area/Subdivision: OTHER
- Garage Type: Garage-Double Attached,Garage-Double Detached
- Construction: Brick
- Foundation: Basement
- Year built: 1977
- Area(neighborhood): Owensboro
- Utility Room Level: First
- Utility Room Description: 7'6" X 4'10"
- Heating System: Forced Air
- Floor covering: Carpet
- Basement: Full-Finished
- Roof: Dimensional
Amenities & Features
- Interior Features: Other-See Remarks
- Amenities:
- Features:
Listing Information
- Listing Provided Courtesy of: Keller Williams Elite